• News
  • Works
  • Practice
  • Contact
f+f architectes
f+f architectes
  • News
  • Works
  • Practice
  • Contact

Bouxwiller

  • Program

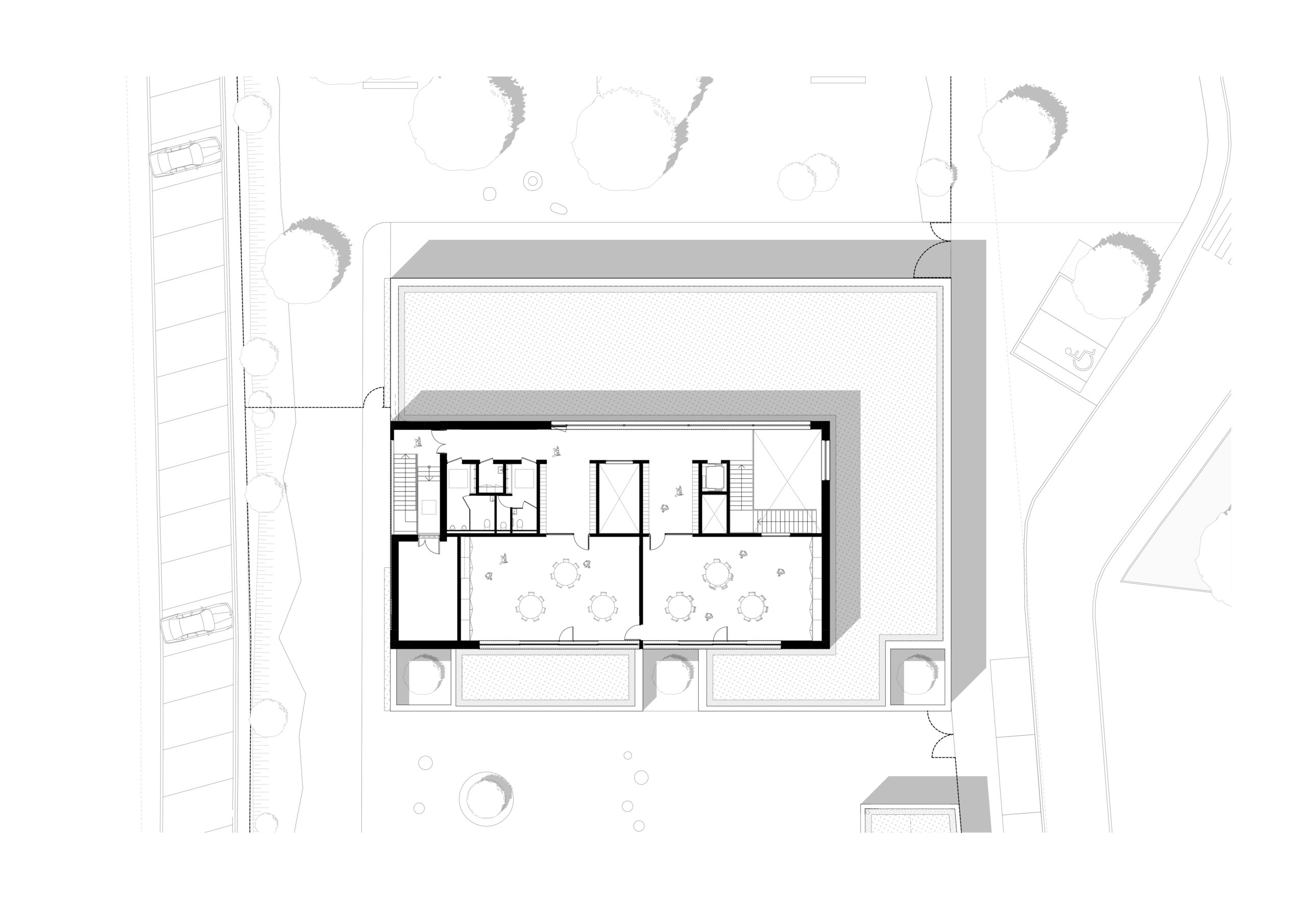
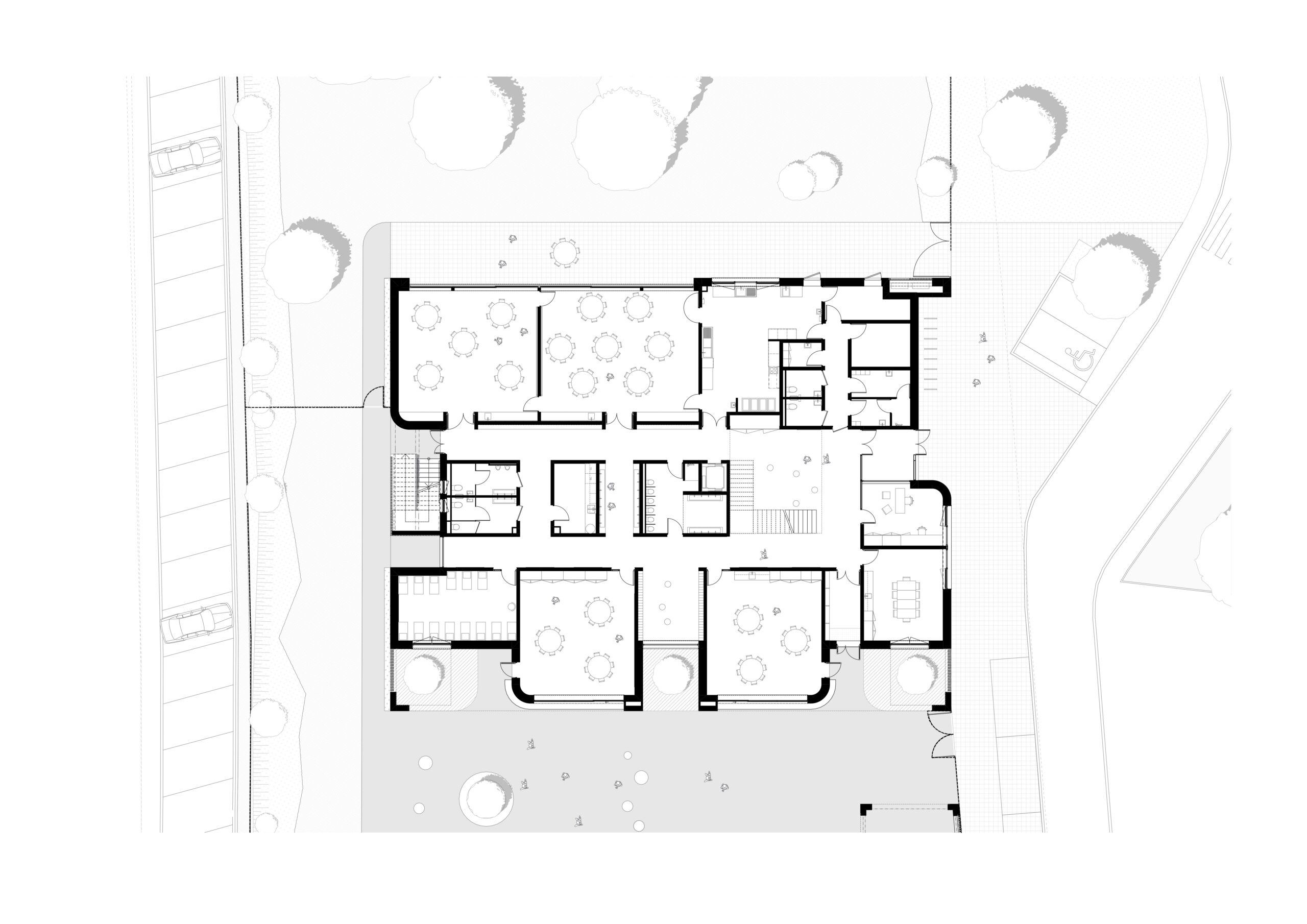
    Kindergarten - 1015 sqm - RE2020 - E+C-
  • Location

    Bouxwiller, France
  • Client

    HLPP - Communauté de Communes de Hanau - La Petite Pierre
  • Date

    2023-2025
  • Cost

    3,1 M€ ex. VAT
  • Team

    F+F ARCHITECTES - E3 ECONOMIE - SIB ETUDES - BET JOST - ESP
F+F_19
F+F_6
F+F_18
F+F_20
F+F_16
Plan de masse
Plan R+1
Plan RDC
F+F_4
F+F_17
F+F_15
F+F_9
F+F_2
F+F_14
Facade Sud
Facade Nord
Facade Est
Facade Ouest
F+F_12
F+F_13
F+F_10
F+F_5
F+F_11
F+F_8
F+F_7
F+F_3
Coupe F
Coupe D
PREV Daguesseau
NEXT Schiltigheim
Copyright f+f architectes
4 avenue des Vosges
67000 Strasbourg
Manage Cookie Consent
To provide the best experiences, we use technologies like cookies to store and/or access device information. Consenting to these technologies will allow us to process data such as browsing behavior or unique IDs on this site. Not consenting or withdrawing consent, may adversely affect certain features and functions.
Functional Always active
The technical storage or access is strictly necessary for the legitimate purpose of enabling the use of a specific service explicitly requested by the subscriber or user, or for the sole purpose of carrying out the transmission of a communication over an electronic communications network.
Preferences
The technical storage or access is necessary for the legitimate purpose of storing preferences that are not requested by the subscriber or user.
Statistics
The technical storage or access that is used exclusively for statistical purposes. The technical storage or access that is used exclusively for anonymous statistical purposes. Without a subpoena, voluntary compliance on the part of your Internet Service Provider, or additional records from a third party, information stored or retrieved for this purpose alone cannot usually be used to identify you.
Marketing
The technical storage or access is required to create user profiles to send advertising, or to track the user on a website or across several websites for similar marketing purposes.
Manage options Manage services Manage {vendor_count} vendors Read more about these purposes
View preferences
{title} {title} {title}